Skip to main content
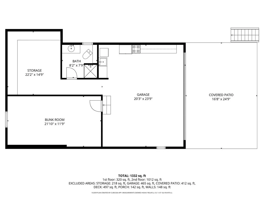
16625 Pinecrest Court, Hidden Valley Lake, California 95467 - $239,900 | Allan Real Estate Investments