$1,650,000
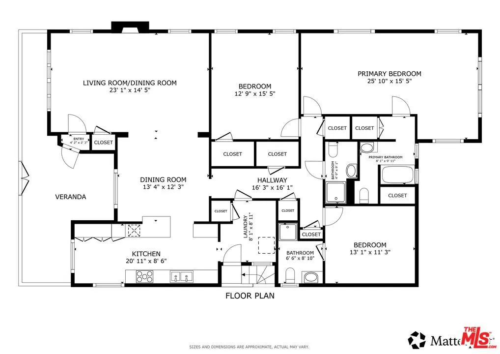
Welcome to this inviting 4-bedroom, 4-bath ranch home where original character and timeless charm create a space that truly feels like home. A striking barreled ceiling welcomes you into the living room, anchored by a cozy fireplace and rich hardwood floors throughout. The thoughtfully designed layout offers comfortable spaces to gather, create, and grow.The home features a spacious dining room, a large gourmet kitchen with a charming breakfast alcove, and an oversized laundry room conveniently located just off the kitchen. Two bedrooms offer en-suite baths, while the expansive primary suite is filled with natural light and provides a peaceful retreat.A versatile lower-level bonus areacomplete with kitchen, dining, living space, bath, and an additional bedroomoffers endless possibilities, ideal for extended family, guests, a creative studio, or work-from-home living.Outdoors, enjoy a fenced, green backyard perfect for entertaining or play. A large garage, storage shed, and generous storage throughout add to the home's functionality, while a long driveway with parking for 8+ vehicles provides rare convenience.Centrally located near restaurants, coffee shops, theaters, and everyday amenities. Zoned R3 and located within an HPOZ. Buyers to verify all information and conduct their own due diligence regarding square footage and permits. Active Camera surveillance on exterior of home.
Click to interact with map
Listed by Craig Shapiro with Redfin (877) 973-3346
Property Type
Single Family Residence
Status
Active
MLS Number
26660839
Year Built
1926
Lot Size
6,752 sq ft