Skip to main content
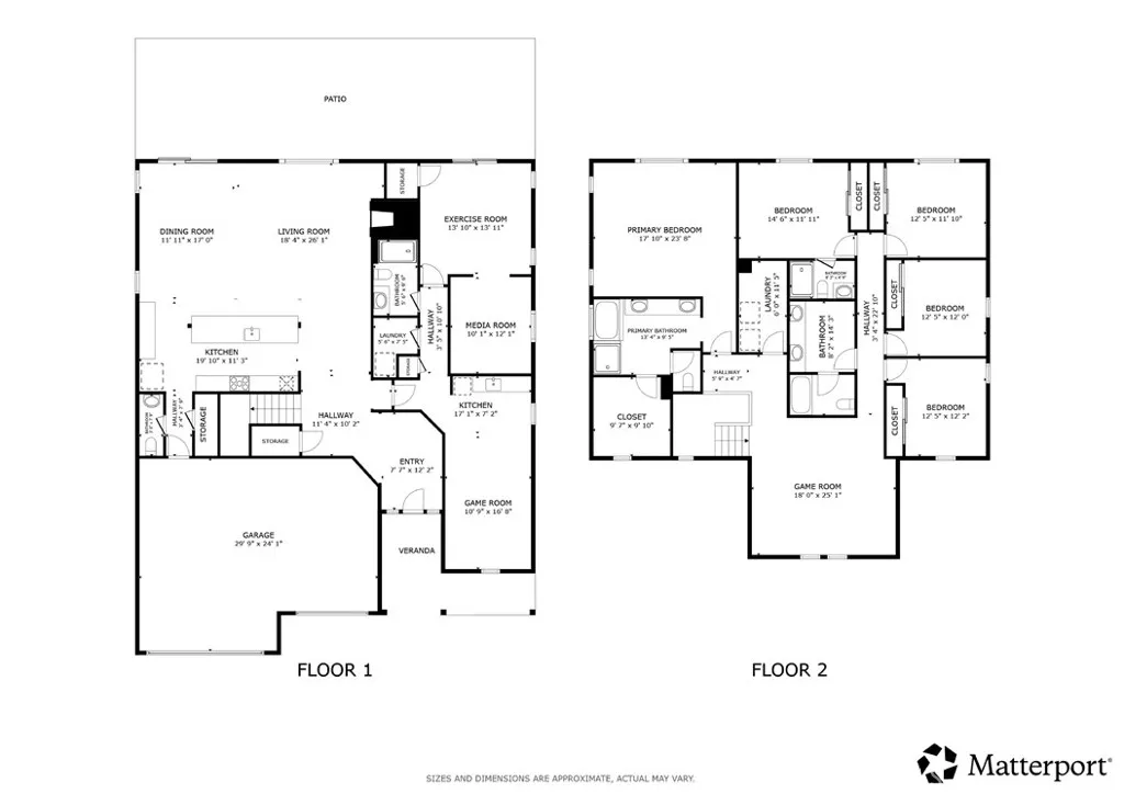
2805 Santa Fiora, Corona, California 92882 - $1,749,900 | Allan Real Estate Investments