$615,000
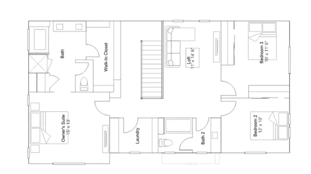
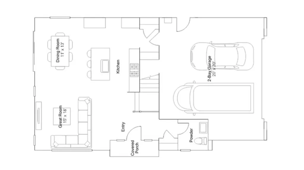
Built in 2024 by Lennar Homes, this two-story detached condominium in the Monterado community offers 3 bedrooms, 2.5 bathrooms, and approximately 1,926 sq ft of living space. The first level features an open floor plan connecting the Great Room, kitchen, and dining area with quartz countertops. Upstairs includes a loft and all three bedrooms, including the primary suite with a walk-in closet and a bathroom with dual sinks, a separate shower, and a tub. Washer, dryer, and dishwasher are included. Additional features include solar and a two-car attached garage. Monterado is a gated community offering amenities including a pool, spa, clubhouse, playgrounds, dog park, picnic areas, walking trails, and recreation facilities. Conveniently located near the 15, 210, and 10 freeways and close to Sierra Lakes Golf Club, Falcon Ridge Town Center, Victoria Gardens, San Manuel Amphitheater, shopping, dining, schools, and local recreation.
Click to interact with map
Listed by Amanda Zito with The Real Brokerage, Inc. (619) 248-6434
Property Type
Condominium
Status
Active
MLS Number
CV26043595
Year Built
2024
Lot Size
1,002 sq ft