Skip to main content
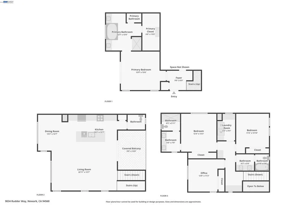
9034 9034 Rudder Way, Newark, California 94560 - $1,498,000 | Allan Real Estate Investments