Skip to main content
Skip to main content
Search
Our Listings
About Us
Open menu
Log In
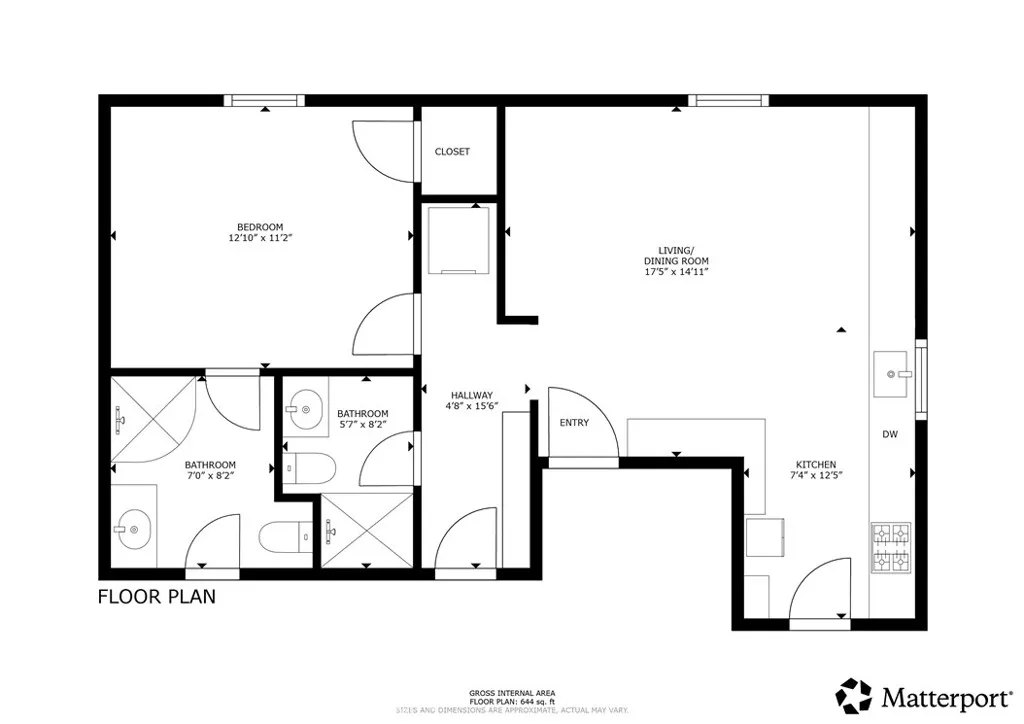
634 East Adams Avenue, Orange, California 92867 - $2,088,000 | Allan Real Estate Investments