Skip to main content
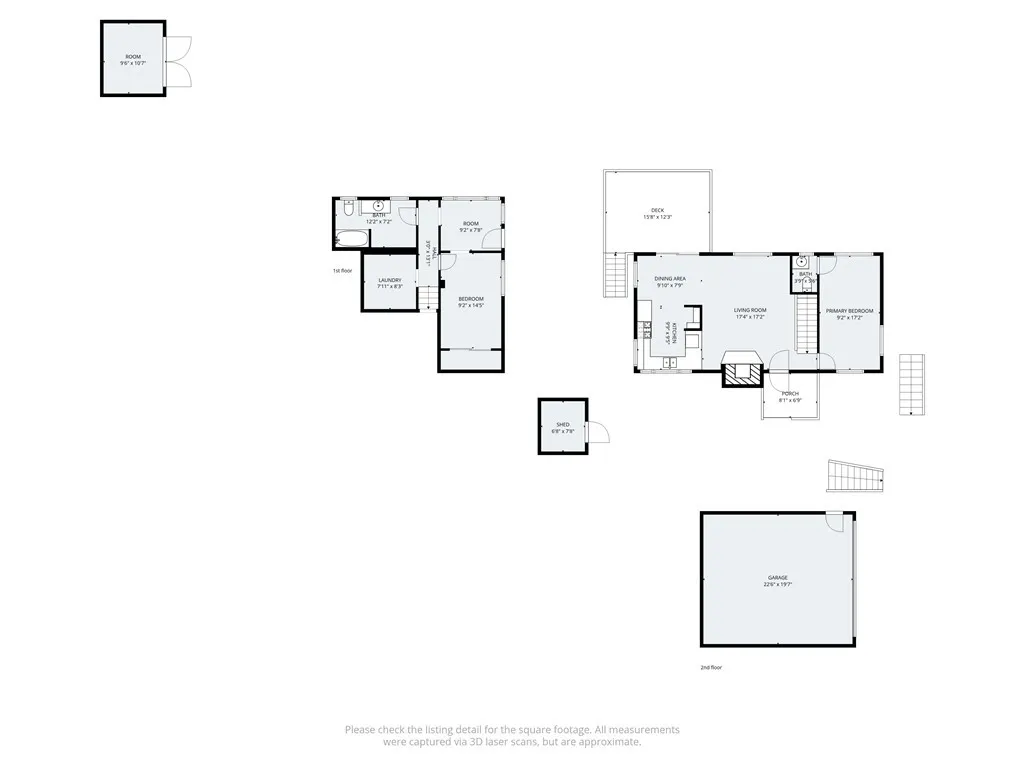
21621 Sawpit Canyon, Cedarpines Park, California 92322 - $349,900 | Allan Real Estate Investments