Skip to main content
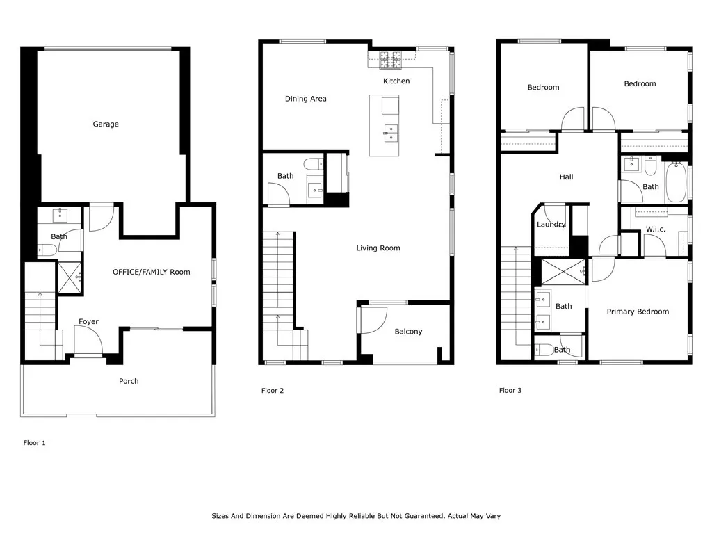
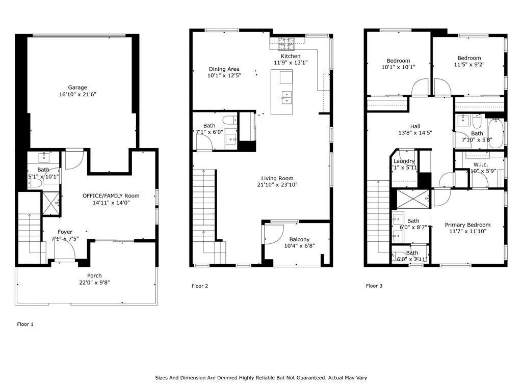
121 E 223rd Street 5, Carson, California 90745 - $789,900 | Allan Real Estate Investments