Skip to main content
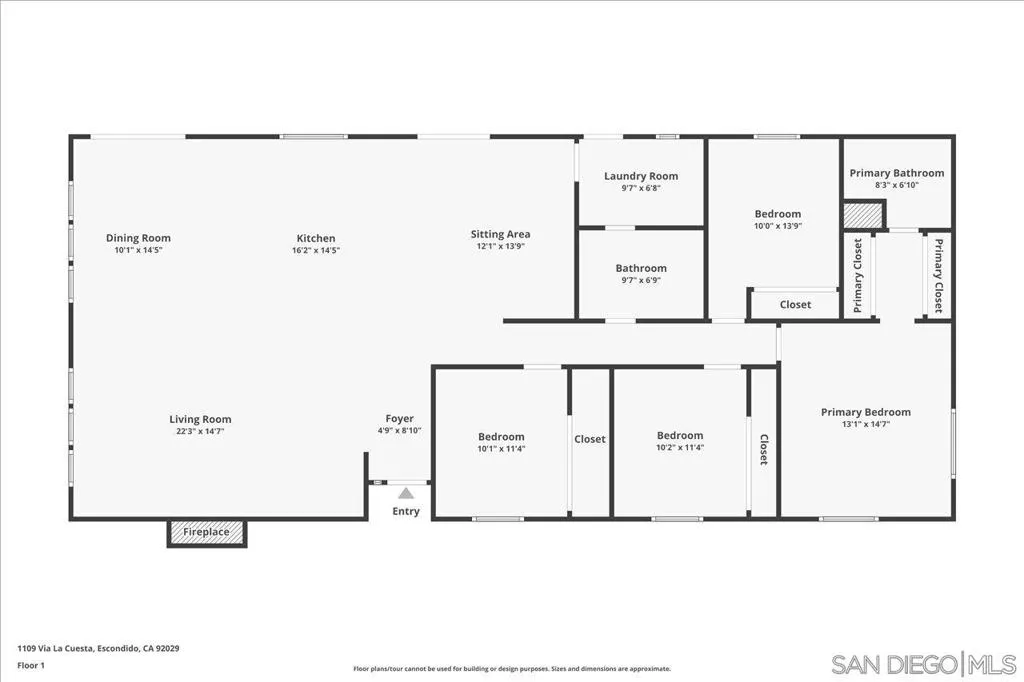
1109 Via La Cuesta, Escondido, California 92029 - $1,176,500 | Allan Real Estate Investments