Skip to main content
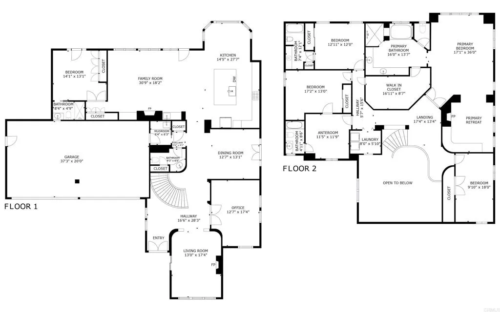
14323 Rancho Santa Fe Lakes Drive, Rancho Santa Fe, California 92067 - $4,249,000 | Allan Real Estate Investments