Skip to main content
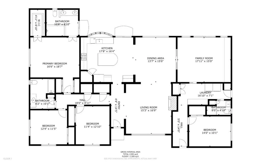
1971 James Place, San Jose, California 95125 - $2,798,000 | Allan Real Estate Investments