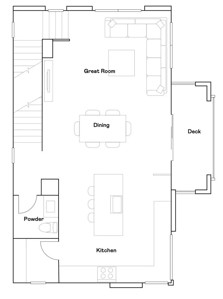
NEW CONSTRUCTION! This new three-story home offers ample space to live and grow. On the first floor is a convenient bedroom with an en-suite bathroom. The main living area is located on the second floor among an inviting open-concept layout, while a nearby deck provides convenient indoor-outdoor living. Two additional bedrooms and a luxurious owner’s suite can be found on the third level.
Allure brings new single-family homes to the Nuvo Parkside masterplan, now selling in Ontario, CA. Residents will enjoy access to available amenities within the gated masterplan, including a clubhouse and BBQ area. A future Great Park and Sports Arena are planned to be built near the community. Enjoy an array of shopping and dining options at nearby Ontario Mills Mall, or catch a live concert at the Toyota Arena. Plus, the Ontario Airport is a short drive away.
Listed by Todd Myatt with Century 21 Masters (888) 862-1194
Quick Facts
Property Type
Condominium
Status
Active
MLS Number
SW26041435
Year Built
2026
Property Type
Condominium
Status
Active
MLS Number
SW26041435
Year Built
2026
Property Highlights
Details
2612 E Hyde Paseo, Ontario, California 91762 - $630,990 | Allan Real Estate Investments