Skip to main content
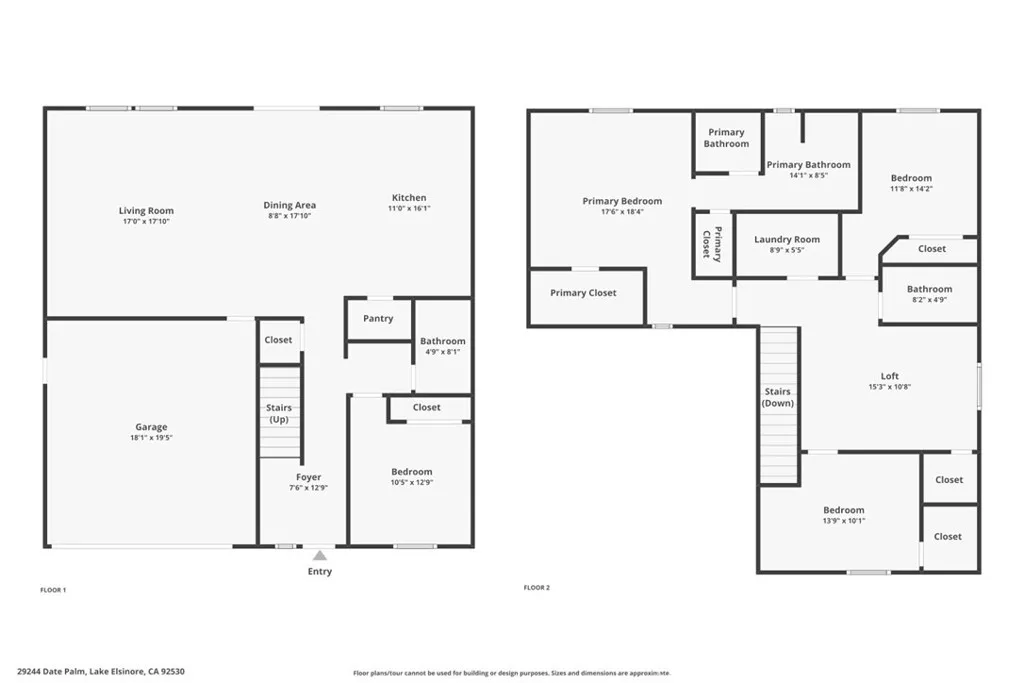
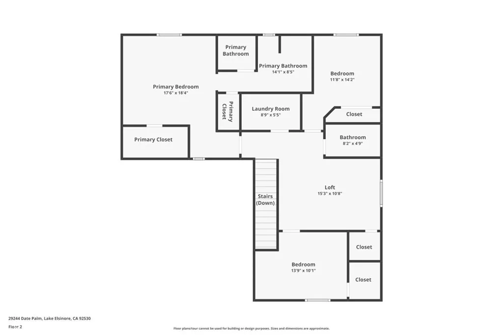
29244 Date Palm, Lake Elsinore, California 92530 - $625,000 | Allan Real Estate Investments