9423 1/2 N. Sepulveda Blvd. 6, North Hills, California 91343 - $499,990 | Allan Real Estate Investments
Location
Click to interact with map
Property Highlights
$499,990
9423 1/2 N. Sepulveda Blvd. 6
North Hills, CA, 91343
9423 1/2 N. Sepulveda Blvd. 6
•North Hills, CA, 91343
1
Bedrooms
2
Bathrooms
1,172
Square Feet
6
Days on Market
1
Bedrooms
2
Bathrooms
1,172
Square Feet
6
Days on Market
About
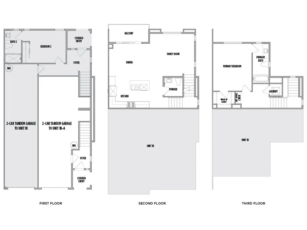
BRAND NEW TOWNHOME! This beautiful home provides quick access to everything you need, whether for work or play. It is conveniently located just minutes from the 405 freeway!
Welcome to Valley Villas, a private, gated community offering 58 all-electric, tri-level townhomes designed for modern urban living. This thoughtfully designed townhome features a large oversized 2-car garage and a welcoming foyer on the ground level with beautiful LVP flooring that continues on the stairs leading you to the next level. The second floor is all about open, modern living that features more LVP flooring, upgraded kitchen countertops with a full backsplash, undercabinet lighting, 9-foot ceilings, a bright dining room, and sliding doors that lead to a balcony, perfect for enjoying fresh air and natural light. A powder room on this level adds extra convenience for guests. On the top floor, you'll find the primary bedroom suite, complete with a walk-in closet offering privacy and comfort. The laundry area is conveniently located on this floor as well, making daily tasks a breeze. Come see this home right away to take advantage of our INCENTIVES that will make this home even more affordable! Call our Valley Villas Sales Office (818) 920-8950 for more detailed information.
Listed by Michael Brunette with Williams Homes Inc. (661) 222-9207