Skip to main content
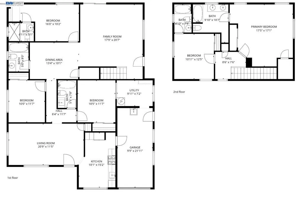
37226 37226 Dutra Way, Fremont, California 94536 - $1,389,950 | Allan Real Estate Investments