Skip to main content
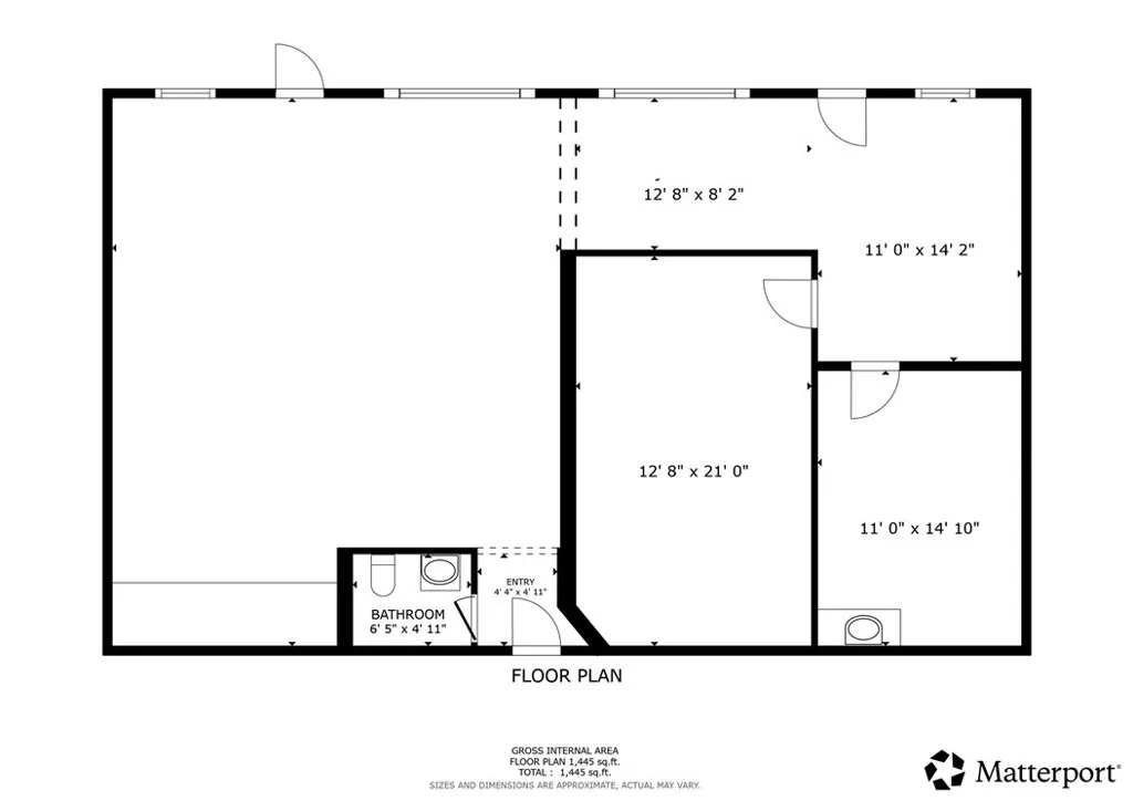
1176 N Main, Lakeport, California 95453 - $325,000 | Allan Real Estate Investments