Skip to main content
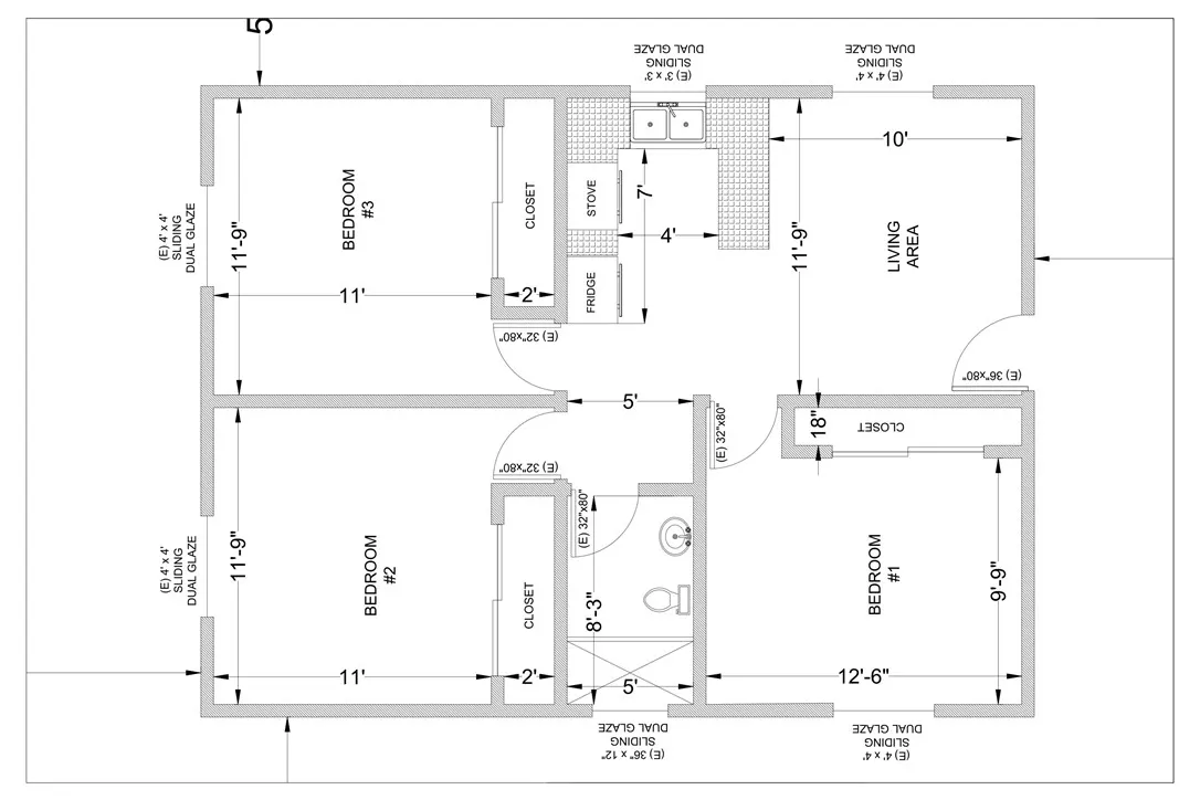
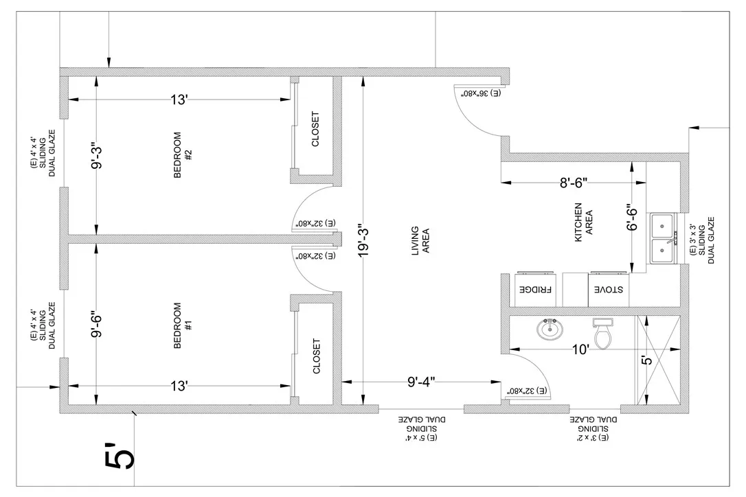
13105 Desmond, Pacoima, California 91331 - $950,000 | Allan Real Estate Investments