$779,000
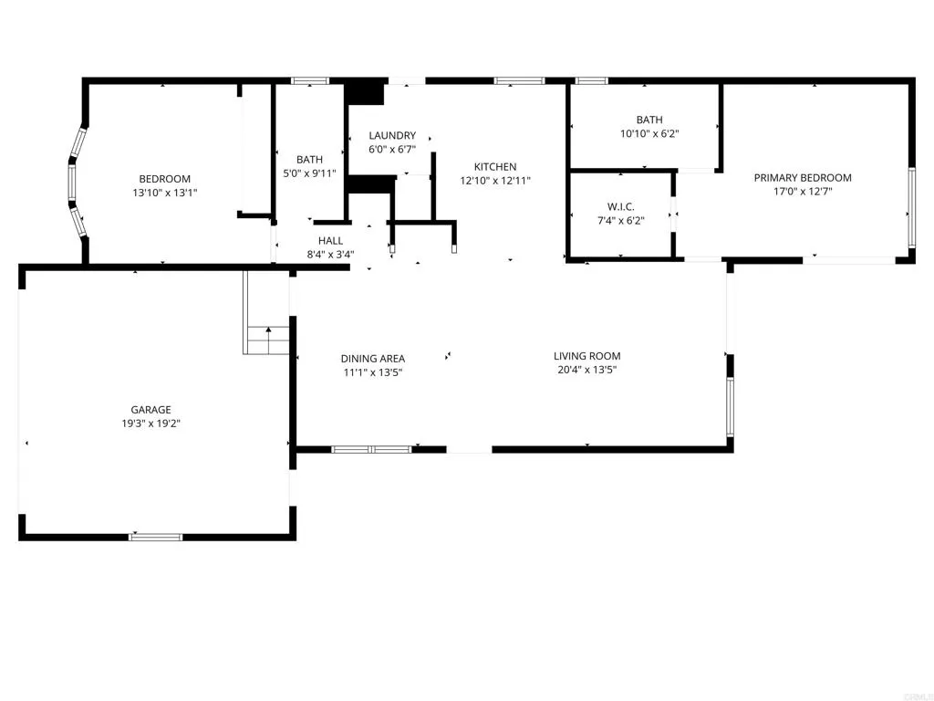
This remarkably beautiful home is located in the desirable Las Brisas Pacificas, a gated community exclusively for residents aged 55 and over. Situated just 7 miles from the beach, this home offers both convenience and an exceptional quality of life. Land owned home and low HOA make this community an exceptional value. The residence has been completely updated to provide modern comfort and style. The remodeled kitchen and primary bathroom are designed with contemporary finishes, while the hand-scraped wide plank laminate flooring and tile flooring throughout the home add a touch of elegance. The designer color palette creates a welcoming and sophisticated atmosphere. Ship-lapped walls add a custom feel to the home. A sunroom addition, enclosed entirely with windows, offers an extra square footage of living space, perfect for relaxation or entertaining guests. Dual pane windows with plantation shutters enhance both energy efficiency and aesthetic appeal, and three solar tubes provide abundant natural light throughout the interior. The home includes an oversized two-car garage and an indoor laundry area. A garden patio, enhanced by two aluminum patio covers, stamped colored concrete and fragrant plantings, provides a comfortable outdoor space with lovely views and privacy. The home is equipped with HVAC that is only five years old, ensuring reliable comfort year-round. Every detail has been thoughtfully considered to make this property a truly special place to call home.
Click to interact with map
Listed by Debbie Gaddis with Allison James Estates & Homes (866) 463-5780
Property Type
Single Family Residence
Status
Active
MLS Number
NDP2601469
Year Built
1990
Lot Size
4,792 sq ft