Skip to main content
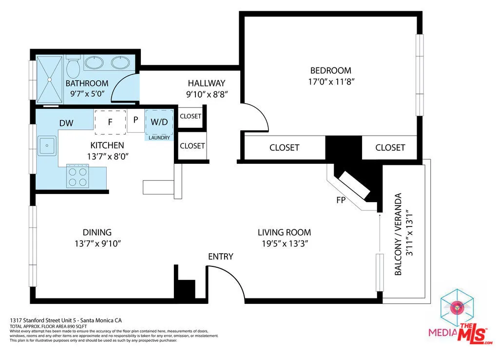
1317 Stanford Street 5, Santa Monica, California 90404 - $718,500 | Allan Real Estate Investments