$749,900
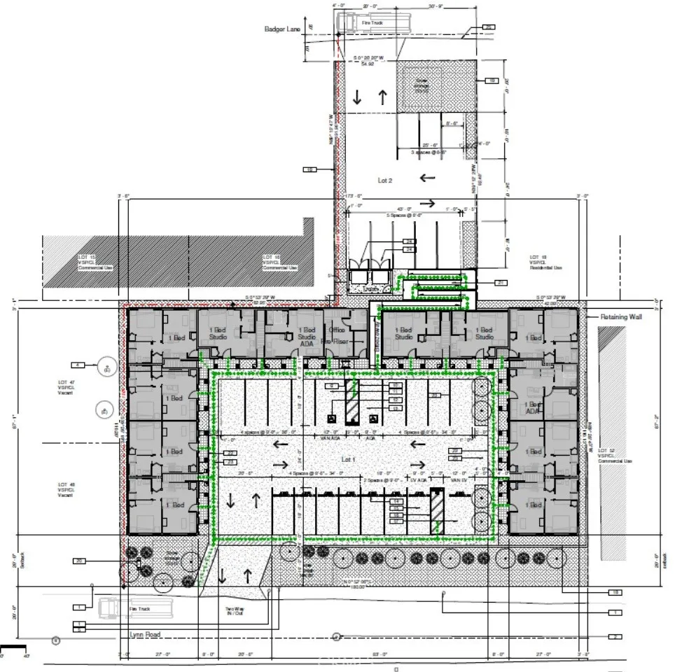
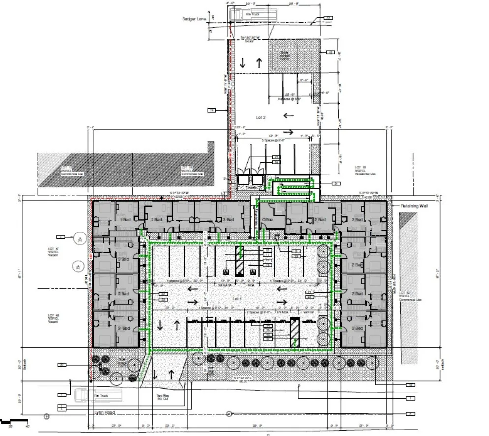
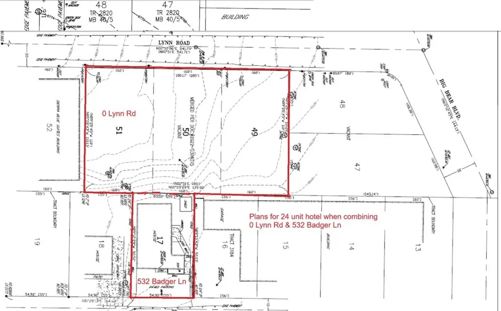
Exceptional development opportunity in Big Bear Lake within the highly desirable Village Specific Plan. This 19,800 sq.ft. commercial land parcel is zoned Commercial Lodging and offers rare flexibility for investors and developers seeking hospitality, residential, or retail potential in the heart of Big Bear Village. The property can be purchased on its own or combined with the adjacent lot at 532 Badger Ln (offered at $549,900) to unlock larger-scale development options. When assembled, preliminary plans are already in place for a 24-unit (16 one bedrooms/8 studios) hotel, as well as alternative plans for a 6-unit condo project, providing multiple viable paths depending on market strategy. The subject parcel alone can accommodate an 11 rental unit hotel + office/storage, with preliminary plans completed, or a 5-unit condo development, offering flexibility for phased or smaller-scale projects. Once built, upper-level and second-story units are anticipated to enjoy lake views, further enhancing long-term value and guest appeal. A perc test was completed in 2023, adding further value and reducing pre-development uncertainty. The location is a major highlight, just steps from the lake and a short walk to Pine Knot Ave, restaurants, shops, and entertainment, making it ideal for lodging, residential, or visitor-serving uses. In addition to hotel and condo development, the Village Specific Plan allows for a variety of other potential uses including residential, retail, restaurants, and related commercial uses, subject to approval. Buyer to conduct all due diligence with the planning commission and applicable agencies regarding permitted uses and development requirements.
Click to interact with map
Listed by Jason Saphire with Jason Saphire Broker (909) 494-1790
Property Type
Land
Status
Active
MLS Number
IG26032209
Year Built
N/A
Lot Size
0.45 acres