$1,175,000
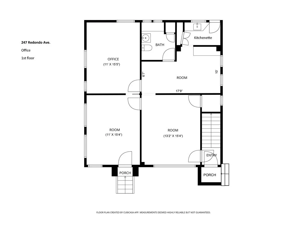
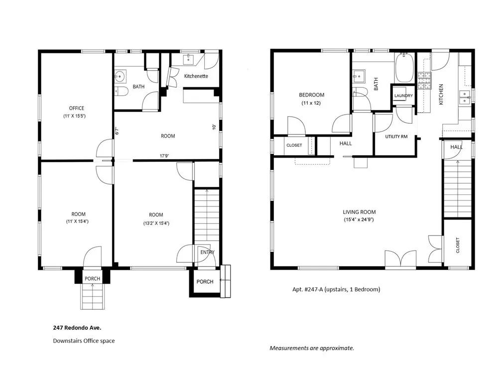
Prime Belmont Heights Duplex. Residential and/or Commercial. **Fixer** Property is zoned CNR, which is a mixed-use district permitting small scale commercial uses and/or moderate density residential. Previously the lower unit was used as an office; however it can be used/converted to residential if you prefer. The (downstairs unit) office includes built-in book shelving, central Air Conditioning and FAH. The upstairs is a residential large 1 Bedroom rental. There are two garages in the rear along with a large concrete patio that can be used for additional parking, entertaining or build an ADU? Rare opportunity with Redondo St. frontage. This is your opportunity to have your own Redondo Ave. street frontage - office with income above and parking too! See attached supplements and Virtual Tour.
Click to interact with map
Listed by Mark Kachigan with Pabst, Kinney & Associates (562) 987-3244
Property Type
Duplex
Status
Active
MLS Number
PW26004876
Year Built
1924
Lot Size
3,594 sq ft