Skip to main content
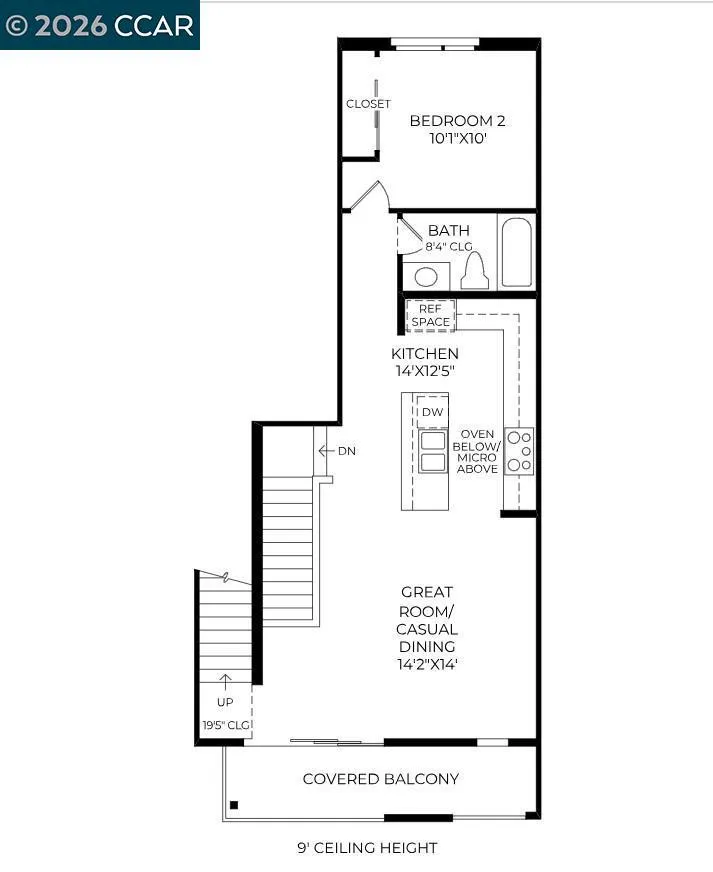
660 660 S Main Street, Milpitas, California 95035 - $1,251,302 | Allan Real Estate Investments