Skip to main content
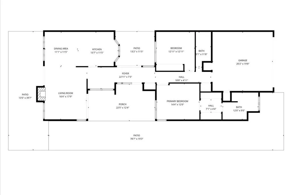
41 Verde Way, Palm Desert, California 92260 - $649,000 | Allan Real Estate Investments