$3,595,000
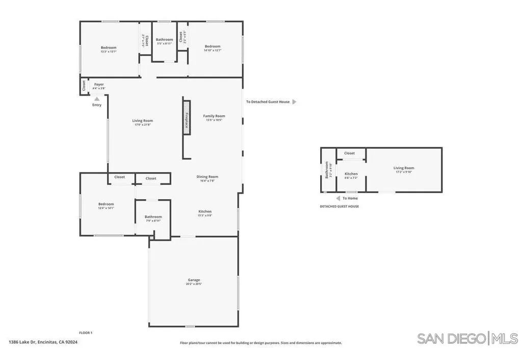
A rare coastal sanctuary set on nearly an acre along one of Encinitas’ most desirable streets. Located on the high side of Lake Drive, adjacent to Crest Drive, this exceptional ocean-view property offers privacy, scale, and flexibility rarely found so close to the coast. The expansive parcel spans over 160 feet of street frontage and a level-to-gently sloping topography, creating a peaceful retreat with exceptional future potential. Existing improvements include a charming 1,480 sq ft California beach bungalow featuring 3 bedrooms and 2 baths, a detached guest unit, and a lushly landscaped backyard oasis with a resort-style in-ground pool and spa surrounded by mature tropical foliage. A Tentative Parcel Map has been filed under SB 9, proposing a two-lot configuration and enhancing optionality for the future owner. The proposed layout includes one lot fronting Lake Drive with the existing residence and a second sizeable parcel accessed via a private access and utility easement. This presents a rare opportunity to remodel and enjoy the existing home, complete the lot split, develop an additional residence, or create a premier coastal estate, subject to buyer verification and City approvals. The surrounding neighborhood continues to evolve, with nearby properties featuring newly constructed custom homes generally ranging from 4,000 to over 6,000 square feet, reinforcing the long-term value and desirability of this location. Ideally situated just minutes from Encinitas and Cardiff beaches, downtown Encinitas, and coastal amenities, and within walking distance to Cardiff Sports Park, Bobby Riggs Racket & Paddle, San Dieguito Academy High School, and Ada W. Harris Elementary, this property offers an exceptional blend of tranquility, convenience, and coastal lifestyle. A true sanctuary retreat with rare scale, SB-9 optionality, and proximity to the beach—1386 Lake Drive represents one of the last remaining opportunities of its kind in Encinitas.
Click to interact with map
Listed by Ernest Hahn II with Pacific Sotheby's International Realty (858) 756-2800
Property Type
Single Family Residence
Status
Active
MLS Number
260002555SD
Year Built
1957
Lot Size
0.91 acres