Skip to main content
Skip to main content
Search
Our Listings
About Us
Open menu
Log In
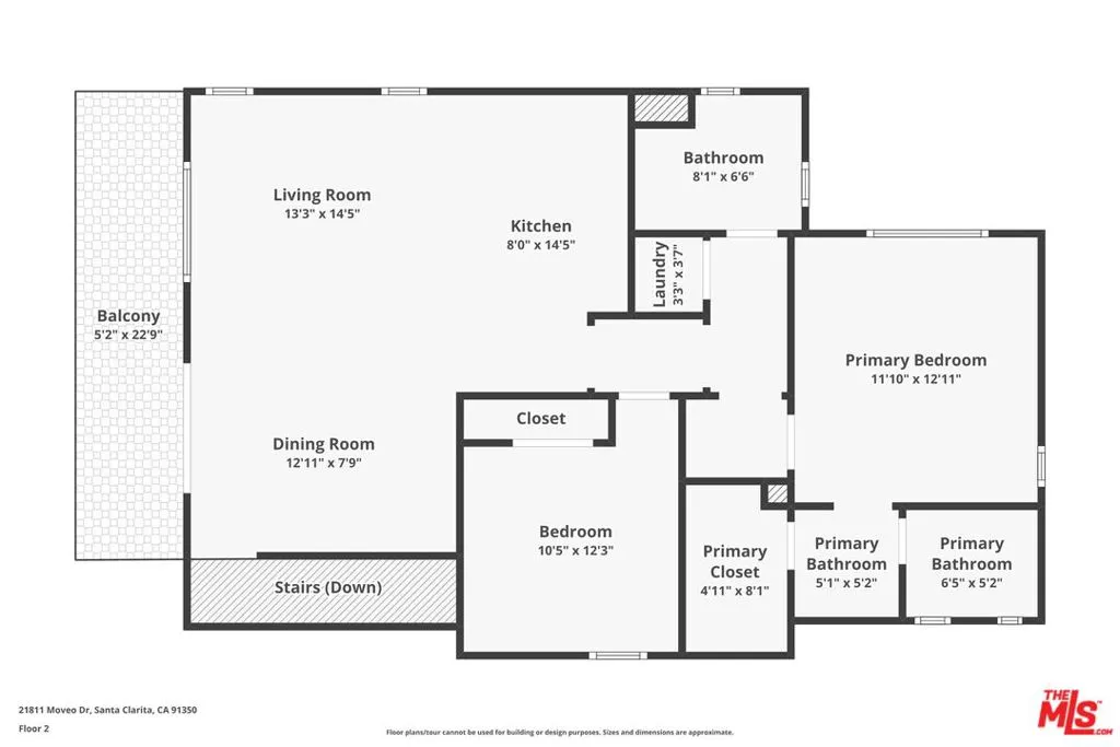
21811 Moveo Drive, Santa Clarita, California 91350 - $679,900 | Allan Real Estate Investments