Skip to main content
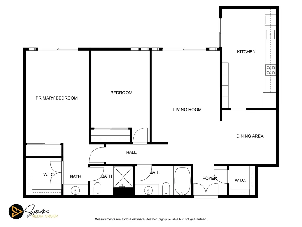
323 323 Monte Vista Ave 107, Oakland, California 94611 - $595,000 | Allan Real Estate Investments