$1,149,000
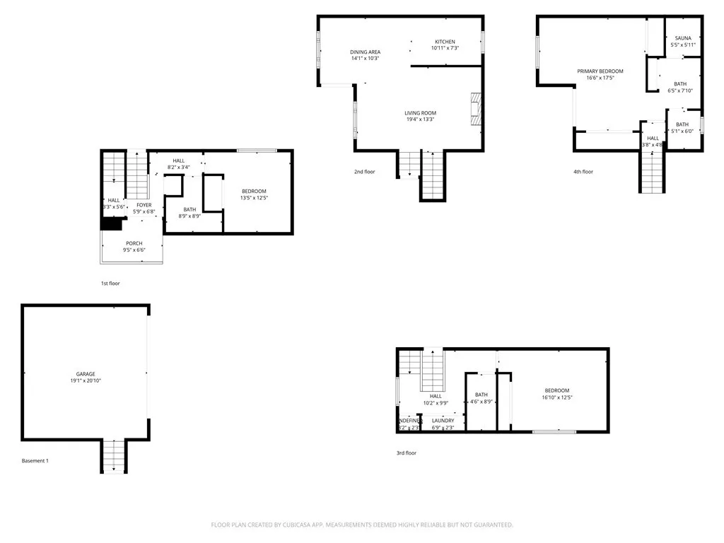
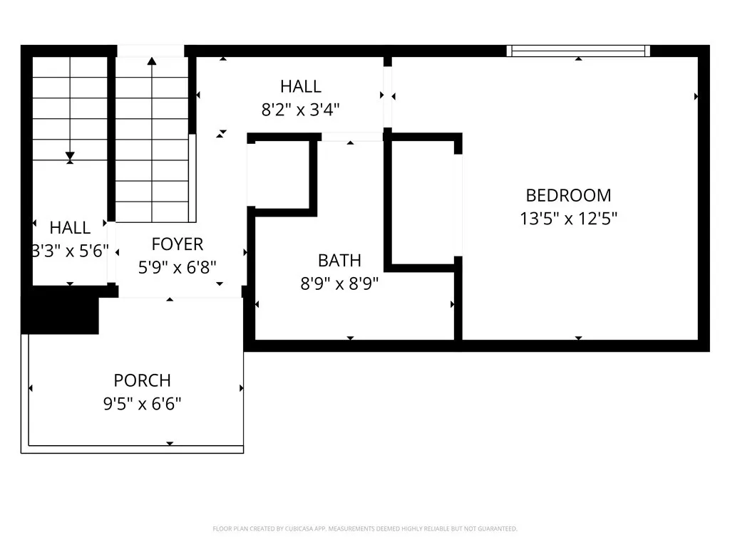
BACK ON MARKET!! Discover an exceptional opportunity in one of South Redondo Beach’s most desirable neighborhoods. This 3-bedroom, 3-bath multi-level condo at 107 S Helberta Ave offers rare amenities — including a private backyard and direct-access 2-car garage — along with the chance to reimagine the space with your own modern vision. The home features mostly original finishes and will require significant updates, making it an ideal canvas for buyers seeking a project or investors looking to add value in a prime coastal location. The main living level provides a bright, functional layout with great bones and the potential for an open, contemporary flow. The top-floor primary suite stands out with vaulted ceilings, its own deck with peek-a-boo blue water and mountain views, and a private sauna, offering a unique foundation for a future luxury retreat. Two additional oversized bedrooms provide flexibility for guests, work-from-home needs, or a growing household. Located moments from the beach, top-rated schools, and the shops and dining of Riviera Village, this property combines an unbeatable location with the opportunity to create a truly personalized coastal home. A rare chance to bring your vision to life in South Redondo.
Click to interact with map
Listed by Dominic Tucci with Pacific Sotheby's Int'l Realty (949) 554-1200
Property Type
Condominium
Status
Active
MLS Number
OC26014556
Year Built
1980
Lot Size
0.30 acres