Skip to main content
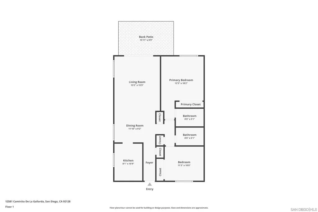
12581 Caminito De La Gallarda, San Diego, California 92128 - $615,000 | Allan Real Estate Investments