$4,495,000
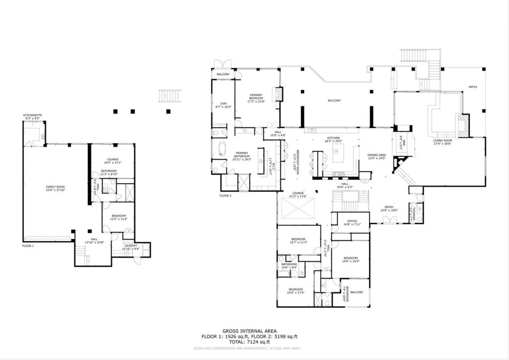
Tucked away on a private cul-de-sac in the guard-gated enclave of Thunderbird Heights lies a large multi-generational home that combines classic California architecture with artful design and enjoyable amenities. This multi-level and sprawling 6-bedroom, 5-bath estate is a playground created to inspire, entertain, and have some delightful fun for yourself and your loved ones. Newly reimagined, this property was formerly owned by celebrated songwriter and music producer Michael Masser (and visited by Diana Ross, Barbara Streisand, Neil Diamond, and Whitney Houston) this home carries a legacy of creativity that resonates throughout. The expansive living area is centered by a dramatic sunken fireplace and retro-chic conversation pit, and is adjoined by a sleek wet bar and direct access to the loggia. The chef's kitchen is a showpiece boasting terrazzo flooring, floor-to-ceiling custom cabinetry, top-of-the-line appliances, and a large pass-through window to the upper terrace for effortless indoor-outdoor entertaining. Enjoy sunny mornings in the glamorously tropical atrium lounge or outside on the loggia from your primary suite. The primary suite is an expansive hideaway overlooking lush landscaping and featuring a spa-inspired bath with a soaking tub, steam shower, separate sauna, dual vanities, a walk-through custom closet, and an adjoining private yoga room. Each ensuite guest room offers a curated story and direct outdoor access through its floor-to-ceiling glass sliders. The walk out level offers a massive rumpus room with a retro kitchenette, a new poolside lounge and shower room, additional guest/staff room, laundry, and wine storage. Multiple levels and spaces for multi-generational entertaining or activity abound. The huge resort-style backyard is a private and lush wonderland complete with a shimmering pool and spa, a sunken and fully lit tennis court, several lounging, grilling, and dining areas, fragrant fruit and mature ficus trees, and more than 50 soaring palms swaying over your sun-soaked desert oasis. 70663 Oroville offers it all.
Click to interact with map
Listed by Keith Blomgren with Bennion Deville Homes (760) 773-3958
Property Type
Single Family Residence
Status
Active
MLS Number
219141187DA
Year Built
1983
Lot Size
1.29 acres