Skip to main content
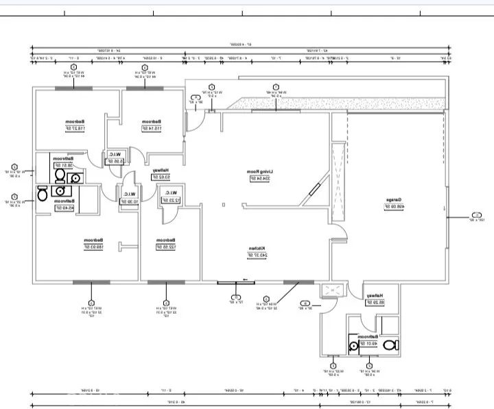
38220 Chuperosa Lane, Cathedral City, California 92234 - $640,000 | Allan Real Estate Investments