$1,890,000
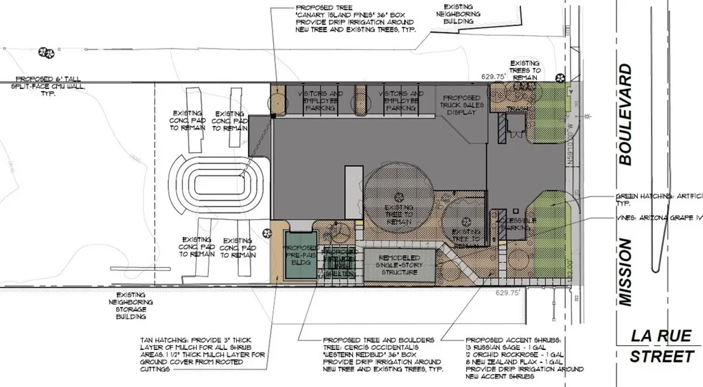
Exceptional commercial development opportunity in rapidly growing Jurupa Valley! Approximately 2.0 acres of vacant commercial land with valuable C-1/C-P = Neighborhood / General Commercial, allowing a wide range of use. Ideal for retail, service, office, and light commercial uses serving local residents and pass-through traffic. This sale includes an APPROVED Tenant Improvement plan for a COMMERCIAL (HEAVY DUTY) TRUCK SALES & REPAIR FACILITY!! Saving an owner or investor significant time, cost, and entitlement uncertainty. Ideal for commercial owner-user, investor, or developer seeking a ready-to-go site with strong automotive-related potential. Property offers excellent frontage exposure along Mission Blvd with high traffic counts, strong visibility, and easy access to major Inland Empire transportation corridors. Surrounded by established industrial, commercial, and automotive businesses. A rare opportunity to purchase commercial land with approved plans already in place. Buyer to verify all zoning and land use details with the City of Jurupa Valley.
Click to interact with map
Listed by Kevin Lee with Coldwell Banker Envision (562) 945-2221
Property Type
Land
Status
Active
MLS Number
TR25273953
Year Built
N/A
Lot Size
2.00 acres