$6,495,000
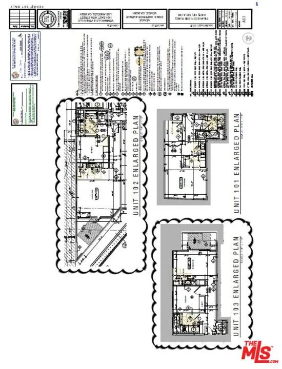
PERMITS HAVE BEEN ISSUED AND PAID FOR, allowing a developer to begin construction on Day One. The project is engineered for no redesign cycles, no tenant relocations a true shovel-ready development. Approved plans call for a contemporary five-story, 56-unit multi family community elevated above one level of subterranean parking. Unit Mix Includes: *15 Singles 389-422 SF*1 ELI Single 417 SF*33 One-Bedrooms 541-664 SF*5 LI One-Bedrooms 526-549 SF*1 One-Bedroom + Den 549 SF*1 LI One-Bedroom + Den 549 SF The offering is priced at an attractive $529 per land SF and $123,125 per buildable unit, which includes approximately $450,000 IN PAID ARCHITECTURAL, STRUCTURAL AND MEP PLANS AND CITY PERMIT COSTS. With 50 market-rate units and six affordable set-asides, this is a rare chance to step directly into a high-value Westside development without entitlement uncertainty.
Click to interact with map
Listed by David Miller with Miller & Desatnik Realty Co. (310) 202-9166
Property Type
Land
Status
Active
MLS Number
25623853
Year Built
N/A
Lot Size
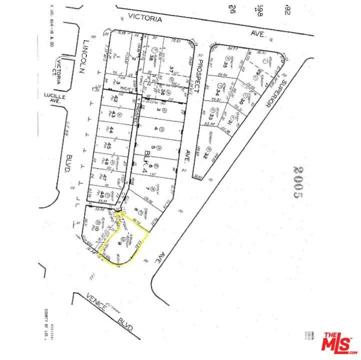
0.30 acres