Skip to main content
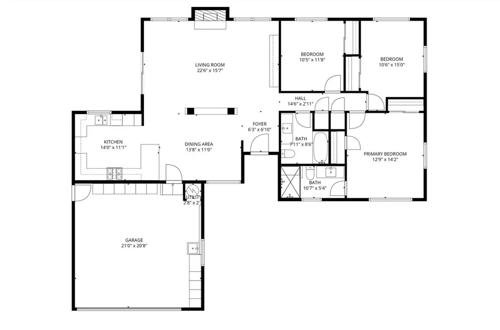
2496 N Beechwood Street, Orange, California 92865 - $1,190,000 | Allan Real Estate Investments