$439,500
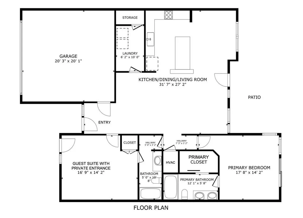
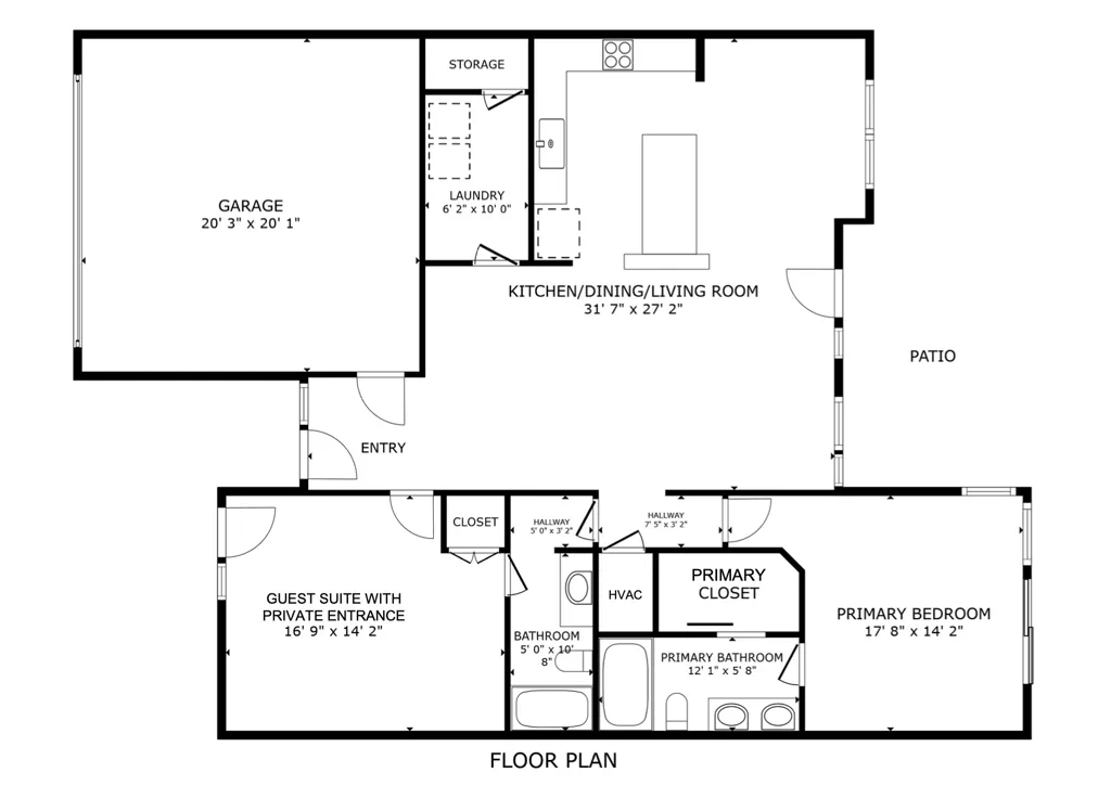
This Beautifully maintained single-story end-unit condominium with 2 Bedrooms and 2 Bathrooms features direct access to its own private 2-car attached Garage. The warm, sophisticated interior features an open-concept Great Room, Dining Area and Kitchen with no partition walls. The Custom Window Coverings with Up-Down Shades provide abundant natural light while maintaining privacy. The Spacious Kitchen, with Granite Countertops and a large Breakfast Bar are adjacent to the Dining Area, which is great for entertaining. The South-facing Patio with mountain glimpses and a scenic desert walkway leading to the community's large pool and spa are a plus. The Primary Suite with Desert Landscaping views similar to those from the Patio, includes an ensuite bathroom with access to the spacious Primary Bedroom Closet. The Second Bedroom Suite features direct access to the Guest/Second Bath and its own private entrance which is ideal for guests. The large Laundry Room with side-by-side Washer and Dryer includes ample storage space as well. And again, the attached 2-Car Garage is ideal. This lovely Simplex Condominium Residence, with no one living above, is located adjacent to the Cimarron Country Club/Golf Course that features two championship courses, a Pro Shop, Dining with Breakfast and Lunch options plus its 'Happy Hour' from 3pm to 6pm daily. Lantana at Cimarron is located at the end of 30th Avenue, west of Landau Road in Cathedral City, CA. It shares the same gated entry as the Worldmark Time-Share Residences.
Click to interact with map
Listed by Charles Barenbrugge with Charles Estates (760) 600-6389
Property Type
Condominium
Status
Active
MLS Number
219139120PS
Year Built
2008
Lot Size
1,498 sq ft