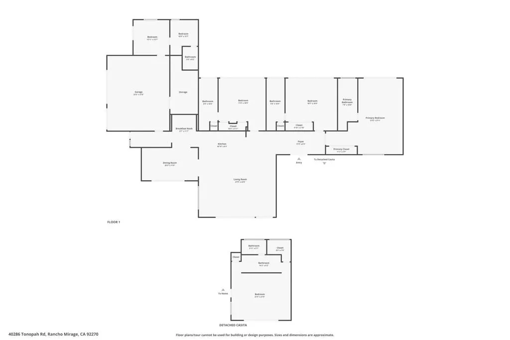
A rare mid-century architectural gem in the Prestigious Thunderbird Heights, attributed to renowned architect Howard Lapham built in 1958. This nearly 4,200 sq ft Pool Home Estate offers a total of 5 Bedrooms and 5 Bathrooms. Included in this count are multiple guest accommodations including a Detached Studio Home as well as an attached Guest Home Casita. Ideal for entertaining, the home features authentic flagstone floors, slump stone accents, a reimagined period-appropriate kitchen, and panoramic mountain views from both north and south-facing patios.Enjoy modern comforts with updated HVAC and a newer roof, plus dual gated driveways for privacy and a grand sense of arrival. A 3-car garage and 2-car carport provide ample parking for collector vehicles and golf carts. Direct golf cart tunnel access to Thunderbird Country Club adds convenience and prestige.This is a rare opportunity to own a piece of architectural history in one of Rancho Mirage's most exclusive enclaves. Perfect for collectors, entertainers, and those seeking timeless design in a legacy community.
Listed by Geoff McIntosh with Coldwell Banker Realty (562) 494-4600
Quick Facts
Property Type
Single Family Residence
Status
Active
MLS Number
219137855DA
Year Built
1958
Lot Size
1.05 acres
Property Type
Single Family Residence
Status
Active
MLS Number
219137855DA
Year Built
1958
Lot Size
1.05 acres
Property Highlights
Details
40286 Tonopah Road, Rancho Mirage, California 92270 - $3,895,000 | Allan Real Estate Investments