1735 Parkview Green Circle, San Jose, California 95131 - $868,000 | Allan Real Estate Investments
Location
Click to interact with map
Property Highlights
$868,000
1735 Parkview Green Cir
San Jose, CA, 95131
1735 Parkview Green Cir
•San Jose, CA, 95131
2
Bedrooms
2
Bathrooms
1,092
Square Feet
127
Days on Market
2
Bedrooms
2
Bathrooms
1,092
Square Feet
127
Days on Market
About
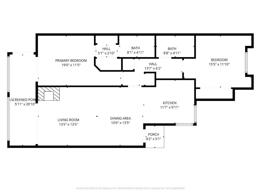
*Soaring ceilings and an extended patio with serene green views set the tone for this bright and airy condo. *Inside, the open kitchen flows seamlessly into the dining and living areas, offering ample cabinetry, stainless steel appliances, and a semi-island perfect for cooking and entertaining. *The spacious living room, warmed by a cozy fireplace, is designed for both comfort and gatherings. *The home features two bedrooms and two full baths, including a private ensuite and a secondary bedroom enhanced with custom shelves and cabinets. Added conveniences include in-unit laundry, central AC, and an attached garage with additional permit parking. *With no upstairs neighbor, privacy comes naturally. The beautifully maintained community offers a sparkling pool and clubhouse. Highly rated Morrill Middle School (8/10), and Independence High School (8/10) *Test scores rated by GreatSchools. *Perfectly located, youll be within walking distance of Townsend Park, San Jose Golf Course, playgrounds, tennis courts, and shopping at 99 Ranch Market, Costco, H Mart, and Safeway. Plus, enjoy easy access to leading tech employers including Nvidia, Google, Apple, and Supermicro.
Listed by Sophie Shen with Keller Williams Thrive (408) 850-6900