Skip to main content
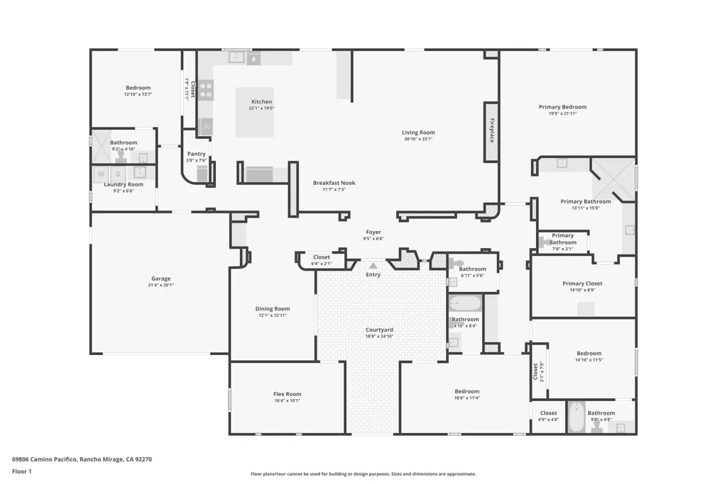
69806 Camino Pacifico, Rancho Mirage, California 92270 - $1,596,000 | Allan Real Estate Investments