$349,000
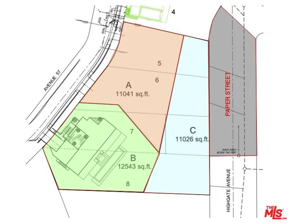
The BEST skyline view lot on the East Side - no ZAD required. Build your dream home, perched high above the sparkling streets of Highland Park, with views from your future windows to Downtown LA and beyond. This large, graded lot is ready for your plans, without the need for a ZAD waiting period. 2 additional, large, adjacent lots are also available - perhaps as a package. This listing is for PARCEL "A" - ALSO SEE listings for PARCEL "B" 1476 N. Avenue 57 (MLS # 25585103, APN 5485-017-023) and PARCEL "C" 1425 N. Highgate Ave. (MLS# 25585123, APN 5485-017-024). Seller financing available.
Click to interact with map
Listed by Andrew Brown with Sotheby's International Realty (323) 665-1700
Property Type
Land
Status
Active
MLS Number
25585079
Year Built
N/A
Lot Size
0.29 acres