$1,300,000
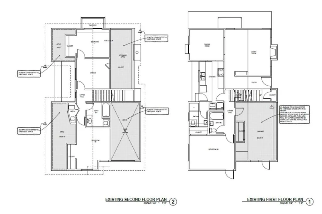
Opportunity knocks at 1024 Webster! Prime Santa Cruz location, a coveted neighborhood, a huge lot, and so much potential. Property is being sold with fully approved plans and permits for a full rebuild. Survey and all county requirements for rebuilding are complete and records regarding the same are available. In-ground pool is already in place and being maintained regularly. The property offers multiple areas for fruit trees, gardening, expanding the additional dwelling unit, and a rose garden. Less than 2 miles to Twin Lakes Beach and East Cliff Drive, this property is the perfect place to build your Santa Cruz dream home. Break ground with the plans available and approved, or create your own for multi-generational living, multiple units, and more - the options are endless at 1024 Webster!
Click to interact with map
Listed by The Mower Group with David Lyng Real Estate (831) 429-5700
Property Type
Single Family Residence
Status
Active
MLS Number
ML82014027
Year Built
1984
Lot Size
0.28 acres