$2,295,000
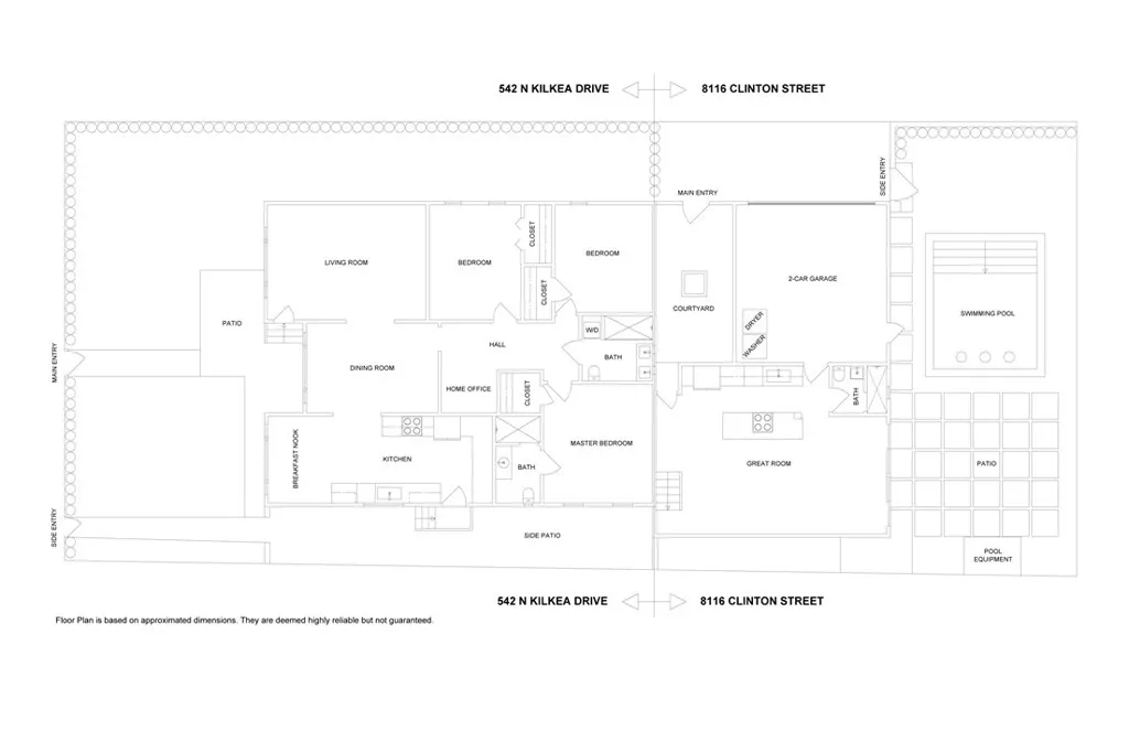
An incredible opportunity! With a major price reduction for a quick sale! A rare opportunity to own two fully renovated homes on one of the largest parcels in Beverly Grove! Set behind privacy hedges, this exceptional property features two standalone residences, each with private entrances. Ideal for owner-occupants, multi-generational living, or investors. 542 N Kilkea Drive is a single-story Spanish-style home with cathedral ceilings, three spacious bedrooms, ensuite master bathroom, plus a second full bathroom. Inside, enjoy a bright, open layout and warm, inviting living space ideal for both entertaining and everyday comfort. The front door opens to a private yard with lush landscaping and a newly poured patio, perfect for outdoor dining or quiet morning coffee. 8116 Clinton Street is a two-story home with two sizable bedrooms, ensuite master bathroom, plus two additional full bathrooms, and custom closets. Take in a view of the Hollywood Hills from the master bedroom, relax on the balcony and watch a beautiful California sunset, or take a seat in the entry courtyard and unwind under the canopy of the beautiful tree that serves as the centerpiece to the home’s entrance. In the rear, take a dip in the newly built, fully heated saltwater pool with in-water barstools and waterfall, surrounded by lush green lawn. A two-car garage serves the Clinton residence; the Kilkea residence features ample street parking. Both homes have been fully transformed, including updated electrical and plumbing systems, energy-efficient windows, new kitchens with Samsung stainless steel appliances, central AC/heat, tankless water heaters, smart-home enabled, security suite with CCTV, and restored original hardwood flooring. Both homes are delivered vacant and are income-ready with high rental potential. Live in one, rent the other - or lease both and hold a premier dual-income asset in one of LA's most walkable zones. The Melrose Place Farmers Market, Melrose Trading Post, Grove, Beverly Center, and Fairfax District are within minutes. Don’t miss this one-of-a-kind property offering space, privacy, and flexibility.
Click to interact with map
Listed by Ali Dehdashty with Amluck Realty Inc. (818) 674-7349
Property Type
Duplex
Status
Active
MLS Number
SR25146034
Year Built
1926
Lot Size
7,131 sq ft