Skip to main content
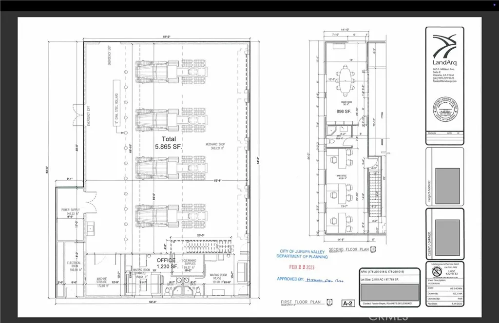
2725 Hall Avenue, Jurupa Valley, California 92509 - $6,489,000 | Allan Real Estate Investments