$4,950,000
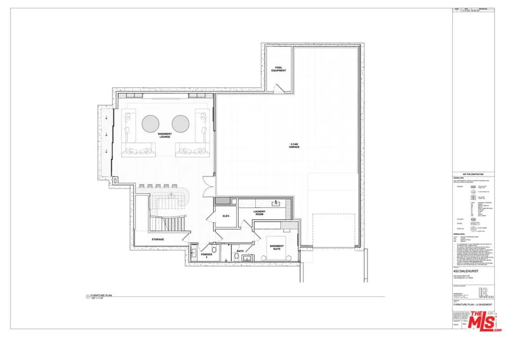
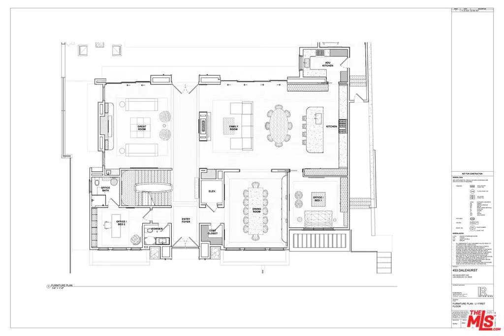
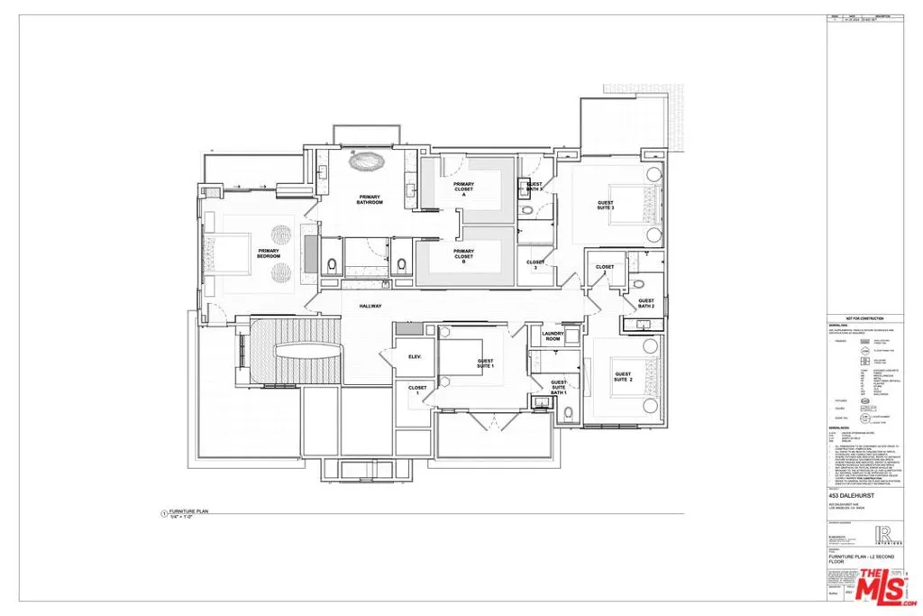
Set upon one of the premier streets in coveted Little Holmby, 453 Dalehurst sets the bar for beautiful design and family-focused elegance in one of the best neighborhoods in Los Angeles. The property comes with fully issued building permits from the City of Los Angeles, allowing a buyer to immediately begin construction on a stunning architectural residence without the delays typically associated with plan approvals.The approved plans showcase an approximately 10,000 square foot estate featuring seven bedrooms including a magnificent primary suite, dedicated office space, a first-class gym, lounge areas, expansive outdoor entertaining spaces, and ample parking. Thoughtfully designed architectural plans and refined interior concepts create the foundation for a truly exceptional home.The team at Crest Real Estate and IR Architectsrecognized consultants in the areaare available to assist with any desired design modifications prior to construction, offering flexibility while preserving the integrity of the approved plans.Located just minutes from Beverly Hills and Century City, Little Holmby offers a rare blend of tranquility and convenience. Wide freshly paved streets, gracious sidewalks, underground utilities, and private armed neighborhood patrols contribute to the area's reputation as one of the most secure and family-friendly communities in Los Angeles.This is a rare opportunity to build a world-class residence in a premier location, where the finished value is poised to significantly exceed the investment. We look forward to helping you bring your vision to life and delivering a truly first-class experience from start to finish.
Click to interact with map
Listed by Max First with Vision Estates (310) 994-6657
Property Type
Land
Status
Active
MLS Number
25479725
Year Built
N/A
Lot Size
0.29 acres