Plans were approved by July 25. Building permits are in hands. It ready to build.
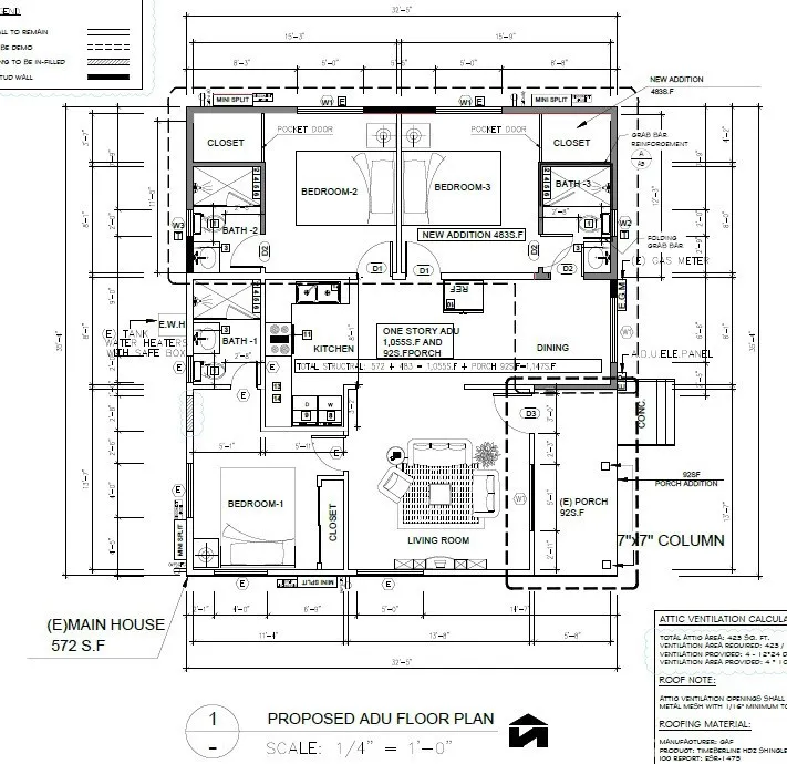
572SF ORIGINAL SINGLE FAMILY HOUSE WITH BIG LOT.
4113 SF NEW DUPLEX BUILDING ADU AND CONVERSION PLAN HAVE JUST BEEN APPROVED. IT IS READY TO BUILD.
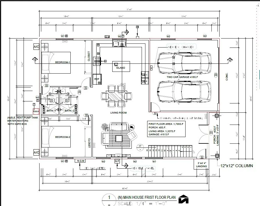
FRONT BUILDING PLAN FOR NEW MAIN HOUSE: 3058 SF 2-STORY SINGLE FAMILY RESIDENCE WITH NEW SFD WITH 6 BEDROOMS, 5 BATHS AND 2-CAR GARAGE 418SF.
BACK UNIT REMODEL AND CONVERTING TO ADU WITH ADDITION NEW AREA: CONVERSION OF 1055SF ACCESSORY DWELLING UNIT (ADU) WITH 3 BEDROOMS AND 3 BATHS.
ALL THE PLANCHECK, PERMITS AND CITY FEES HAD BEEN PAID. NEW BUYER JUST TAKE THE PROJECT AND START THE CONSTRUCTION.
SELLER IS A DEVELOPER AND CONTRACTOR AND CAN OFFER REASONABLE PRICE FOR THE BUILDING JOBS.
ANY QUESTIONS, PLEASE CALL LISTING AGENT.
Listed by DAVID XU with EXCELLENCE RE REAL ESTATE (562) 948-4553